Gewerbefläche
Wir verkaufen m2 für Ihre Idee.
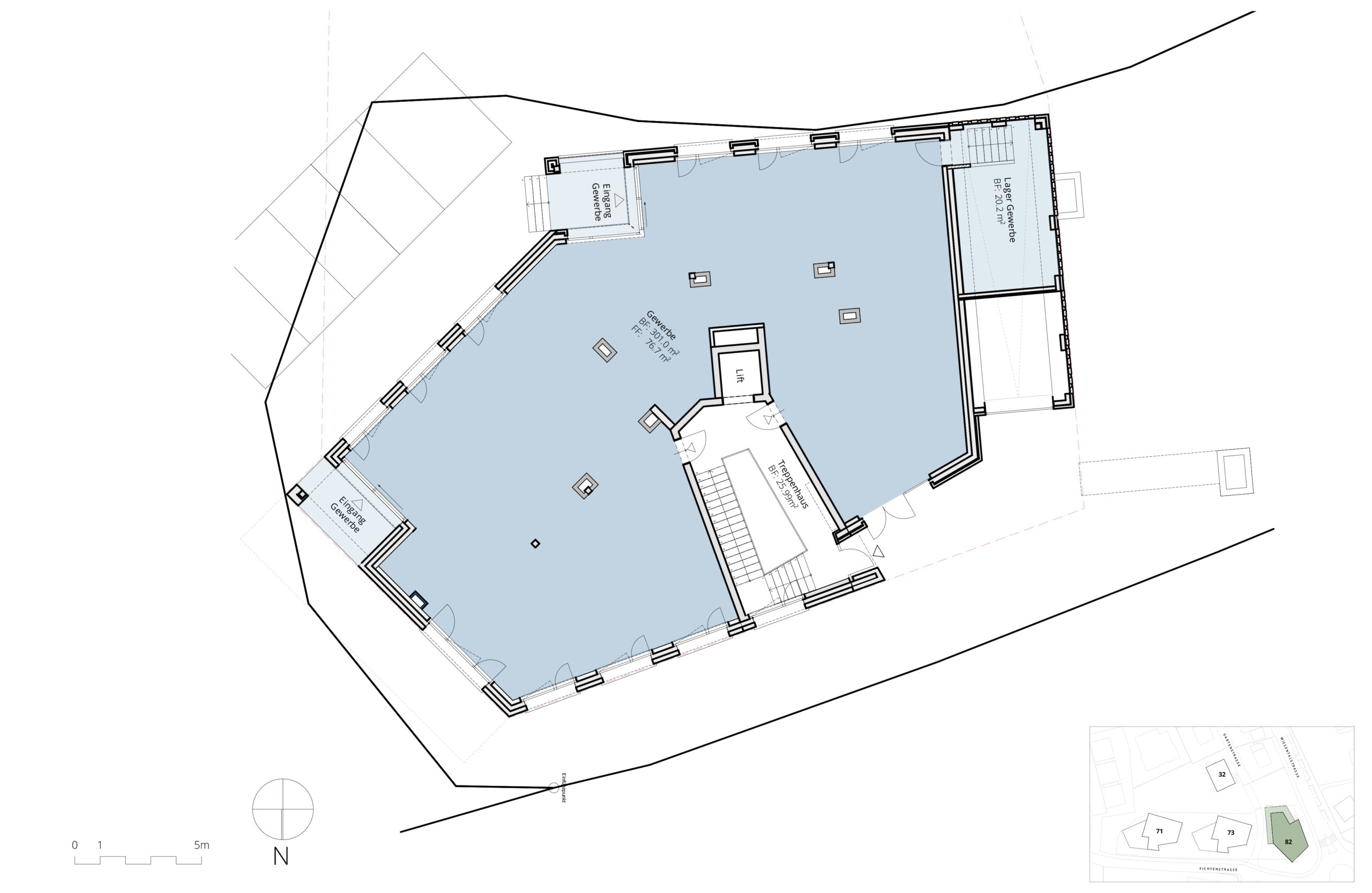
Diese moderne und helle Gewerbeeinheit bietet Ihnen auf ca. 300 m2 vielfältige Nutzungsmöglichkeiten – ob als Büro, Café, Praxis, Studio, Kanzlei oder Einzelhandel. Die Räumlichkeiten lassen sich ganz individuell an Ihr Geschäftsmodell anpassen.

Highlights
Profitieren Sie von einer belebten Umgebung mit guter Infrastruktur und Laufkundschaft. Die Kombination aus moderner Ausstattung und vielseitiger Nutzungsmöglichkeit macht diese Gewerbefläche zu einem idealen Standort für Ihren unternehmerischen Erfolg.
Zentrale Lage
Grosse Fenster
Flexible Raumaufteilung
Barrierefreier Zugang
Ideal für Start-ups oder etablierte Unternehmen
Besucherparkplätze vorhanden
Anschlussmöglichkeiten für Küche oder Sanitäreinrichtungen
Grundriss
Haus 82, Erdgeschoss

Grundriss Variante
Haus 82, Erdgeschoss




